Ecomatic JD 4-250
| Максимальная подача | Максимальный напор | Диаметр патрубков | Максимальный размер твёрдых включений |
| 160 м³/ч | 32 м | 100 мм (4") | 50 мм |
Технические характеристики
| Тип | Установка водопонижения с дизельным двигателем | |||||||
| Исполнение | Колесная база | |||||||
| Вакуумный насос | 75 м³/ч, масляный с системой рециркуляции | |||||||
| Тип привода | дизельный | |||||||
| Варианты двигателя | VM модель SUN 2105E2, 20 кВт х 1800 об/м | |||||||
| Lombardini модель 9LD625-2, 11 кВт х 1700 об/м | ||||||||
| Deutz модель D2011L02I, 16 кВт х 1800 об/м | ||||||||
| HATZ модель 2M41, 18 кВт х 1800 об/м | ||||||||
| Объем топливного бака | 130 л | |||||||
| Вес товара | 780 кг | |||||||
| Возможность звукоизолированного исполнения | да, исполнение SILENT и MELODY | |||||||
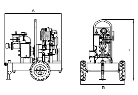
Габаритные размеры

Длина А - 175 см, Ширина В - 137 см, Высота Н - 190 см
Графики производительности и напора







